持續創新,共創共享
屠宰場在生產加工過程中會產生大量廢氣,為惡臭氣體,臭氣主要來源于待宰圈、屠宰車間、污水處理站。其主要成分為氨氣、硫化氫等惡臭氣體,這些惡臭氣體會使人產生不舒服,并對廠區空氣質量、室外大氣環境、附近居民、設備腐蝕均造成重大影響。對屠宰場臭氣進行全面徹底的治理,將廢氣進行收集、治理,然后達標排放,是打造環境友好型屠宰業的關鍵。
清潔能源
綠色環保
安全穩定
維護簡單
概述
ZHONGYUAN LVFENG
屠宰場在生產加工過程中會產生大量廢氣,為惡臭氣體,臭氣主要來源于待宰圈、屠宰車間、污水處理站。其主要成分為氨氣、硫化氫等惡臭氣體,這些惡臭氣體會使人產生不舒服,并對廠區空氣質量、室外大氣環境、附近居民、設備腐蝕均造成重大影響。對屠宰場臭氣進行全面徹底的治理,將廢氣進行收集、治理,然后達標排放,是打造環境友好型屠宰業的關鍵。

依據河南綠豐環保工程有限公司實際治理經驗,詳解下屠宰場臭氣處理相關知識。
設計依據
ZHONGYUAN LVFENG
屠宰場臭氣處理方案設計依據:
1. 廠內待宰圈、屠宰車間、污水處理站現場情況;
2. 生產廠家建筑、設備等有關資料;
3. 國家和地方有關工程建設及設計質量的法律、法規、政策和文件等。
4. 國家和地方有關工程建設的設計規范、規程、標準等。
設計原則
ZHONGYUAN LVFENG
方案設計編制原則
1. 遵照國家對環境保護制定的有關規范、標準及規定。
2. 采用技術**、高效節能、效果穩定的處理工藝,確保廢氣處理達標排放和滿足長期使用。
3. 妥善處置廢氣處理過程中產生的廢物,避免造成二次污染。
4. 選擇效節能、運行可靠、管理方便、維修簡便的處理設備;
5. 合理布置處理構筑物,減少工程投資,工藝能靈活運行,降低日常處理費用;
6. 現自動化管理,做到技術**、經濟合理、運行可靠、操作方便。

排放標準
ZHONGYUAN LVFENG
屠宰場臭氣經治理后應滿足《惡臭污染物排放標準》(GB14554-93)標準要求。

處理工藝
ZHONGYUAN LVFENG
屠宰廠臭氣處理工藝選擇
屠宰場臭氣處理工藝,應根據該屠宰場具體工程情況進行工藝選型設計,才更具有針對性。
屠宰場臭氣主要成分為氨氣、硫化氫等惡臭氣體,目前對于惡臭氣體處理方法,常見主要有化學除臭法(酸性/堿性)、生物除臭法、活性炭吸附法、生物濾池法、UV光解除臭法、高壓噴霧系統等。
屠宰廠臭氣處理一般選用工藝:

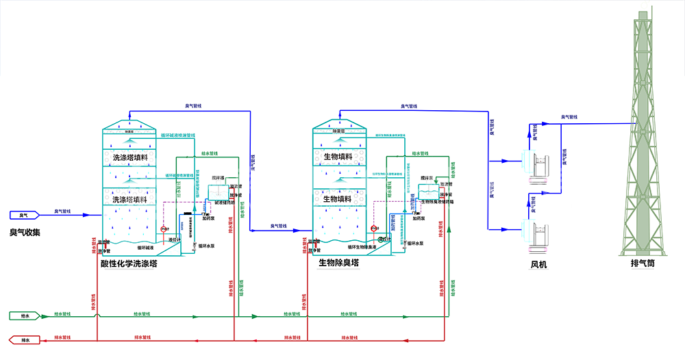
屠宰廠臭氣處理工藝簡圖

屠宰廠臭氣處理工藝流程圖
工藝流程說明:
惡臭氣體在后端風機的抽吸作用下****入逆流式酸性化學洗滌塔,在酸性化學洗滌塔中通過酸堿中和、水洗作用去除廢氣中的部分堿性物質、易溶于水的物質、灰塵;臭氣進過一級洗滌后再進入生物除臭塔,生物除臭塔噴灑介質為生物除臭劑,利用微生物實現臭氣的凈化,處理后的臭氣經過15米排氣筒達標排放。
配套設備
ZHONGYUAN LVFENG
屠宰廠臭氣處理工藝所需設備介紹:
1.洗滌塔
洗滌塔屬兩相逆向流填料吸收塔。其原理為:氣體混合物的分離,總時根據氣體混合物中各組分的物理、化學性質的差異而進行的。洗滌塔為一種應用廣泛的氣液傳質設備,氣體從塔體下方進氣口沿切向進入凈化塔,在通風機的動力作用下,迅速充滿進氣段空間,然后均勻地通過均流段上升到一級填料吸收段。在填料的表面上,氣相中污染物與液相中物質發生化學反應。反應生成物油(多數為可溶性鹽類)隨吸收液流入下部貯液槽。未完全吸收的氣體繼續上升進入一級噴淋段。在噴淋段中吸收液從均布的噴嘴高速噴出,形成無數細小霧滴與氣體充分混合、接觸、繼續發生化學反應。然后氣體上升到第二級填料段、噴淋段進行與一級類似的吸收過程。第二級與一級噴嘴密度不同,噴液壓力不同,吸收氣體濃度范圍也有所不同。在噴淋段及填料段兩相接觸的過程也是材熱與傳質的過程。通過控制空塔流速與滯貯時間保證這一過程的充分與穩定。對于某些化學活潑性較差的氣體,尚需在吸收液中加入一定量的表面活性劑。塔體的上部是除霧段,氣體中所夾帶的吸收液霧滴在這里被清除下來,經過初步處理后的氣體從吸收塔上端排氣管進入下一級處理設備。
2.活性炭箱
活性炭是一種非常優良的吸附劑,它是利用木炭、各種果殼和優質煤等作為原料,通過物理和化學方法對原料進行破碎、過篩、催化劑活化、漂洗、烘干和篩選等一系列工序加工制造而成。活性炭具有物理吸附和化學吸附的雙重特性,可以有選擇的吸附氣相、液相重的各種物質,以達到脫色精制、消毒除臭和去污提純等目的。
活性炭吸附法就是利用活性炭作為物理吸附劑,把產生的有害物質成分,在固相表面進行濃縮,從而使廢氣得到凈化治理。這個吸附過程是在固相一氣相間界面發生的物理過程。
3.光催化氧化裝置
本產品利用特制的高能高臭氧UV紫外線光束照射廢氣,裂解工業廢氣如:氨、硫化氫、甲硫氫、甲硫醇、甲硫醚、乙酸丁酯、乙酸乙酯、二甲二硫、二硫化碳和苯乙烯,硫化物H2S、VOC類,苯、甲苯、二甲苯的分子鏈結構,使有機或無機高分子惡臭化合物分子鏈,在高能紫外線光束照射下,降解轉變成低分子化合物,如CO2、H2O等。利用高能高臭氧UV紫外線光束分解空氣中的氧分子產生游離氧,即活性氧,因游離氧所攜正負電子不平衡所以需與氧分子結合,進而產生臭氧。
UV+O2→O-+O*(活性氧)O+O2→O3(臭氧),*臭氧對有機物具有*的氧化作用,對工業廢氣及其它刺激性異味有*的清除效果。工業廢氣利用排風設備輸入到本凈化設備后,凈化設備運用高能UV紫外線光束及臭氧對工業廢氣進行協同分解氧化反應,使工業廢氣物質其降解轉化成低分子化合物、水和二氧化碳,再通過排風管道排出室外。利用高能UV光束裂解工業廢氣中細菌的分子鍵,破壞細菌的核酸(DNA),再通過臭氧進行氧化反應,徹底達到凈化及殺滅細菌的目的.從凈化空氣效率考慮,我們選擇了-C波段紫外線和臭氧發結合電暈電流較高化裝置采用脈沖電暈放吸附技術相結合的原理對有害氣體進行消除,其中-C波段紫外線主要用來去除硫化氫、氨、苯、甲苯、二甲苯、甲醛、乙酸乙酯、乙烷、丙酮、尿烷、樹脂、等氣體的分解和裂變,是有機物變為無機化合物。
凈化裝置由初濾單元、-C波段紫外線裝置,降解收集,臭氧發生器及過濾單元等設備和部件組成。
適用范圍
ZHONGYUAN LVFENG
產品適用于屠宰廠、肉加工廠、食品廠污水站等惡臭氣體的除臭凈化處理。

項目現場
ZHONGYUAN LVFENG


掃二維碼 微信關注
詳細咨詢
聯系綠豐環保
12年專注食品工業水治理一站式服務
在這里統統幫您解決!
地址:河南省新鄉市國家863新鄉科技產業園T12
15343739724